Obrenovac, Obrenovac Urban Municipality, City of Belgrade, Central Serbia, Serbia





Obrenovac, Obrenovac Urban Municipality, City of Belgrade, Central Serbia, Serbia
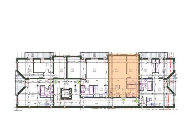
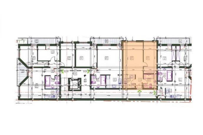
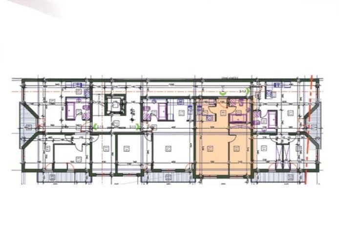
Predstavljamo vam dvosobne stanove u izgradnji, površine 39,32 m², koji se nalaze na prvom, drugom i trećem spratu zgrade koja se nalazi na odličnoj lokaciji.
Stan se sastoji ulaznog hodnika, prostrane dnevne sobe sa trpezarijom, kuhinje, spavaće sobe i kupatila.
Zgrada će biti priključena na kompletnu infrastrukturu.
Udaljena 500 m od centra Obrenovca, blizina svih neophodnih objekata za svakodnevno funkcionisanje.
Cena stana 1.650 €/m².
Završetak radova je planiran za septembar 2027. godine.
Izborom kupovine ovih stanova birate ne samo zidove već mesto gde nastaju uspomene i toplina doma. Svaki kvadratni metar odiše kvalitetom, udobnošću i porodičnom atmosferom. Izaberite kvalitet.
Agencijska provizija 2% (min. 600 €)
Više informacija na tel.069-29 06 511
150.000€ 16.500€
Dodato: март 25, 2026
395.000€
Dodato: јул 11, 2025
€/m² 1.650€
Dodato: септембар 24, 2025
Kuća 286 m², 4 ara, Potića Voće, Obrenovac, 300.000 €
Owning a home is a keystone of wealth… both financial affluence and emotional security.
Suze Orman